KRONAS HEAT-MASTER (SH) 250 кВт

KRONAS HEAT-MASTER (SH) 250 кВт

    0 review(s) | Add your review

    0,00 грн 0.0 UAH

    0,00 грн

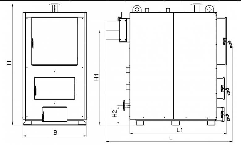
    Котли KRONAS HEAT MASTER SH - це котли високої потужності (від 99 кВт до 1 МВт) з теплообмінником жаротрубного типу і шамотірованною камерою топки. Дана серія котлів спроектована для опалення об'єктів з великою площею від 1000 м.кв. до 10 000 м.кв. Паливом для котлів даної серії є дрова і кускове паливо на основі деревини. Завдяки шамотірованній топці в котлах даної серії деревина згорає з дуже високою ефективністю і при цьому показник емісії шкідливих речовин має дуже низький рівень.

    Особливості котлів даної серії:
    • великий обсяг топки;
    • можливість роботи котла в системах опалення з тиском до 3 бар;
    • легкий і зручний доступ в будь-яку частину котла для чищення та обслуговування;
    • можливість роботи котла на деревині з вологістю до 40%.

    • Потужність, кВт
    • Площа обігріву, м.кв.

    Ця комбінація не існує.

    В кошик

    Технічні характеристики для KRONAS HEAT-MASTER (SH) 250 кВт

    Потужність, кВт Більше 200
    Площа обігріву, м.кв. Більше 2000