KRONAS UNIC-P 125 кВт

KRONAS UNIC-P 125 кВт

    0 review(s) | Add your review

    189 400,00 грн 189400.0 UAH

    189 400,00 грн

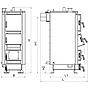
    Модельний ряд твердопаливних котлів KRONAS UNIC P - це продовження лінійки універсальних твердопаливних котлів серії UNIC. Головна відмінність даної моделі - це те, що котел повністю адаптований під установку пелетного пальника, має правильно розташований посадковий фланець, який забезпечує відсутність прямого контакту факела з металом, а також наявність великого зольника для тривалої автономної роботи.
    Твердопаливний котел KRONAS UNIC P можна використовувати в ручному режимі завантаження палива і в автоматичному. Для переходу на автоматичну подачу палива буде потрібно встановити пальник і бункер для палива, що займає небагато часу і не вимагає змін в конструкції котла.

    • Потужність, кВт
    • Площа обігріву, м.кв.

    Ця комбінація не існує.

    В кошик


    Технічні характеристики для KRONAS UNIC-P 125 кВт

    Потужність, кВт 100-200
    Площа обігріву, м.кв. 1000-2000